Daku Ghar Palitana

Involvement: Design Development, Presentation, Drawings | Team: Faizan Khatri, Shashank Ahuja

The client and his parents, originally from Palitana, Gujarat, travel back often to visit family. Needed a home that could be used for up to a few months every year, with a view towards the mountains that the client loved to admire as a kid. Uff, what's better than some nostalgia right? The home had to be small and minimal so as to be easy to maintain, and preferably have a small outdoor space that could occasionally be used to put out some chairs for tea or to park a compact car.

 Material Palette

 
Laterite.jpg
Rammed Earth.jpg
Wood.jpg
Terrazzo.jpg
Aluminium.jpg
Black Marble.jpg
 
 
Ground Floor Plan

Ground Floor Plan

Plan

 
 
First Floor Plan

First Floor Plan

 

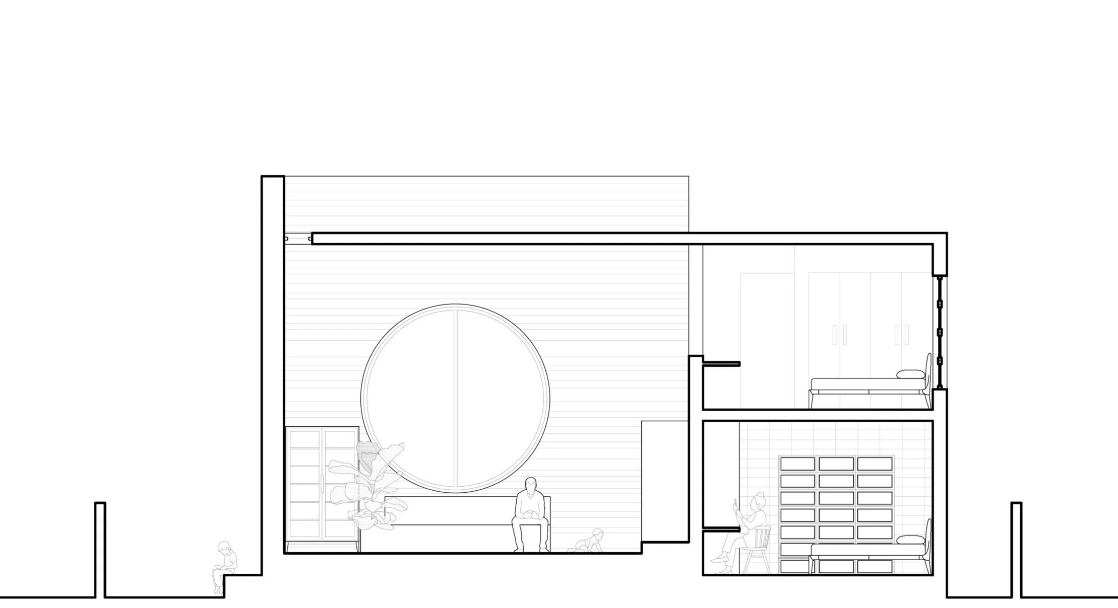
Sections

 
 
Screenshot+%2882%29.jpg
 
Bungalow+Section
 
 
Bungalow+Section
 
Screenshot (85).png
 
 
Screenshot%2B%252882%2529.jpg
 
Bungalow Section
 
 
section%2B2.jpg
 
 
Screenshot%2B%252887%2529.jpg
 
 
Screenshot (83).png

 

 
Previous
Previous

Folding Pods